nl
de
it
en
nl
Actieve vakantie
Wandelingen & bergtochten
Wandelen
Waalwegen
Bergroute Vinschger Höhenweg
Bergroute Ortler Höhenweg
Bergwandelingen & -tochten
Vertikaal vervoer
Fiets & mountainbike
(E-)mountainbike
Racefiets
Via Claudia Augusta
Skiën & andere wintersporten
Skigebieden
Skitoeren
Langlaufen & biatlon
Winter- en sneeuwschoenwandelen
Schaatsen
IJsklimmen
Gletsjerskigebied
Sport & recreatie
Paard- & koets-rijden
Vissen
Klimmen
Zwemmen & sauneren
Avontuurlijke sporten
Gezinsvakantie
Beleef de bergen
Onderweg op twee wielen
Skipret en winterbelevenissen
Klimavontuur
Zwemplezier
Speelplaatsen
De natuur op het spoor
Cultuur & kunst
Bezienswaardigheden
Musea
Burchten & kastelen
Kerken & kloosters
De panorama-pasweg van Stilfser Joch
Marmer
Vindplaats van Ötzi
Glurns
Toren in het Reschenmeer
Bunkers
Natuurlandschap
Nationale park Stilfserjoch
Sonnenberg - Nördersberg
Boomgaarden
Drielandenpunt
Proeven & genieten
Almen & schuilhutten
Zomer
Winter
De keuken van Vinschgau
Restaurantgids
Recepten
Genieten in het najaar
Plaatselijke producten
Appels
Aardbeien
"Vinschger Paarl"-brood
De pala-peer
Asperges
Speck
Abrikozen uit Vinschgau
Almenkaas van de Vinschgau
Wijn
Whisky & Gin
Markten
Jaarmarkten
Weekmarkten
Boerenmarkten
Voedsel van de boerderij
Service & informatie
Plan uw vakantie
Accommodatie zoeken & boeken
Hotel
Vakantiewoning
Pension
Camping
Vakantie op de boerderij
Vakantiepakketten
Aactieve Aanbiedingen Pakketten
Dagtochtjes
Actuele informatie
Top-evenementen
Alle evenementen
Webcams
Weer
Gevonden voorwerpen
Interreg-projecten
Ligging & aankomst
Met de auto
Met de trein
Met de bus
Met de vliegtuig
Mobiliteit in Zuid-Tirol
Südtirol Guest Pass Vinschgau
Mobilcard
Informatiemateriaal
venusta – Vinschgau Magazine
Interactieve kaart
Downloads & Catalogus
Video's
FAQ
Social Wall
Vakantiegebieden
Kastelbell-Tschars
Latsch-Martelltal
Schlanders en Laas
Prad am Stilfserjoch
Ortlergebiet
Schnalstal Valley
Zoeken & boeken
nl
de
it
en
nl
Evenementen
Weer
Webcam
Kaart
Kontaktdaten:
39020
CIN: IT021103B4C8THPI6I
Tel. +39 349 7439901
Lageplan:
Route berechnen
© Ulli Christandl
© Christandl Ulli
© Ulli Christandl
© Christandl Ulli
© Christandl Ulli
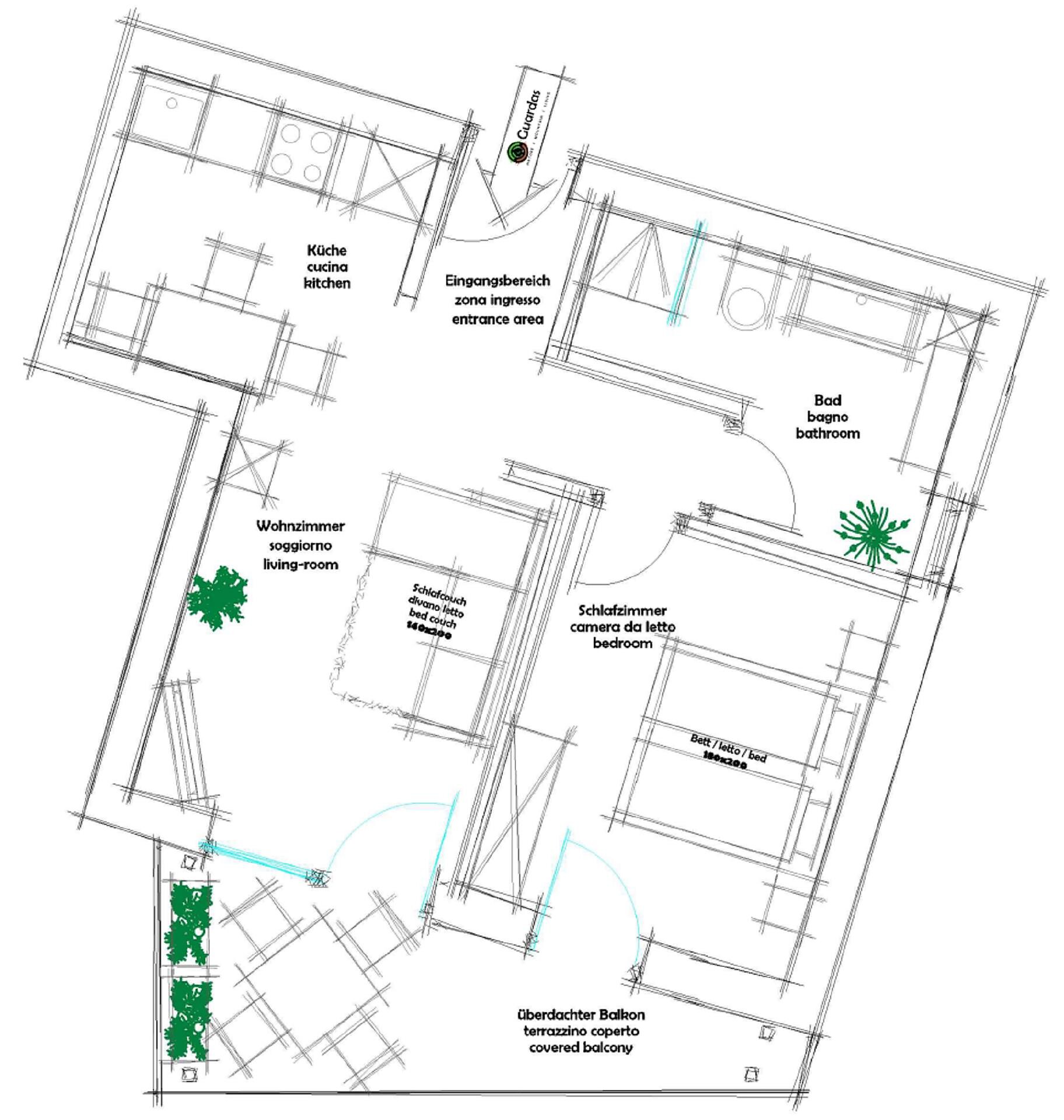
Unterkunft
Zimmer & Buchen
Ausstattung
Anfrage senden
Bitte wählen Sie Ihre Reisedaten aus, um Preise und Verfügbarkeit zu prüfen:
1
Anreise
Abreise
Unterkunftstyp
1
Erwachsene
Kinder
<1
1
2
3
4
5
6
7
8
9
10
11
12
13
14
15
16
17
18+
Jahre
<1
1
2
3
4
5
6
7
8
9
10
11
12
13
14
15
16
17
18+
Jahre
<1
1
2
3
4
5
6
7
8
9
10
11
12
13
14
15
16
17
18+
Jahre
<1
1
2
3
4
5
6
7
8
9
10
11
12
13
14
15
16
17
18+
Jahre
<1
1
2
3
4
5
6
7
8
9
10
11
12
13
14
15
16
17
18+
Jahre
<1
1
2
3
4
5
6
7
8
9
10
11
12
13
14
15
16
17
18+
Jahre
-
Unterkunftstyp
entfernen
+
Unterkunftstyp
hinzufügen
Alle Unterkunftstypen
Preise und Verfügbarkeit prüfen...
ab
120,00 €
bei Belegung 2 Personen/Nacht
Verfügbarkeit noch zu prüfen
(für 1 - 4 Person/en
| 50 m²
| 1 Appartements dieses Typs
)
Ausstattung:
, , , , , , , Non-smoking apartment, , , , , Hob, , , , , , , , , , ,
Anfragen
Zimmerpreise anzeigen
Preis pro Wohneinheit
Anreisetage: alle Wochentage
Zeitraum
Nur Übernachtung
12.04.2026 - 31.01.2030
120,00 €
Nur Übernachtung: 18 € pro Tag / für jede Person
Nur Übernachtung: -10 € pro Tag / gesamte Einheit
ab
140,00 €
bei Belegung 2 Personen/Nacht
Verfügbarkeit noch zu prüfen
(für 2 - 6 Person/en
| 70 m²
| 1 Appartements dieses Typs
)
Ausstattung:
, , , , , , , Non-smoking apartment, 2 or more bedrooms, , , , , Hob, , , , , , , , , , ,
Anfragen
Zimmerpreise anzeigen
Preis pro Wohneinheit
Anreisetage: alle Wochentage
Zeitraum
Nur Übernachtung
12.04.2026 - 31.01.2030
140,00 €
Nur Übernachtung: 20 € pro Tag / für jede Person
Hiking
Open car park
WLAN
in de buurt van een OV-halte
Venosta Valley Card
Unverbindliche Anfrage senden:
Anrede *
Herr
Frau
Familie
Vorname
Nachname *
E-Mail *
Straße
PLZ
Stadt
Land
Telefon
Wählen Sie Ihre Reisedaten aus:
1
Anreise
Abreise
Unterkunftstyp
1
Erwachsene
Kinder
<1
1
2
3
4
5
6
7
8
9
10
11
12
13
14
15
16
17
18+
Jahre
<1
1
2
3
4
5
6
7
8
9
10
11
12
13
14
15
16
17
18+
Jahre
<1
1
2
3
4
5
6
7
8
9
10
11
12
13
14
15
16
17
18+
Jahre
<1
1
2
3
4
5
6
7
8
9
10
11
12
13
14
15
16
17
18+
Jahre
<1
1
2
3
4
5
6
7
8
9
10
11
12
13
14
15
16
17
18+
Jahre
<1
1
2
3
4
5
6
7
8
9
10
11
12
13
14
15
16
17
18+
Jahre
-
Unterkunftstyp
entfernen
+
Unterkunftstyp
hinzufügen
Alle Verpflegungsarten
Nur Übernachtung
Mitteilung
Die
Datenschutzinformation
habe ich - insbesondere was die Nutzung der Widgets betrifft – aufmerksam gelesen.
Ja, ich will informiert werden! Hiermit willige ich ein, dass meine obigen Daten auch zum Versand von Informations- und/oder Werbematerial oder für Mitteilungen – auch per elektronischer Post – über neue Produkte, Services, sowie Events, die auf dieser Webseite kommuniziert werden, oder Neuigkeiten diese betreffend, verarbeitet bzw. verwendet werden. Diese Einwilligung ist jederzeit widerruflich, insbesondere indem ich eine E-Mail an gdpr@lts.it sende. Die weitergehenden Details in der Datenschutzinformation habe ich zur Kenntnis genommen.
Anfrage absenden